Projekty
Studio
Kontakt
Instagram
Byt 05
foto: Petr Karšulín
Role
Architekt
Date
2015
Type
rekonstrukce bytu
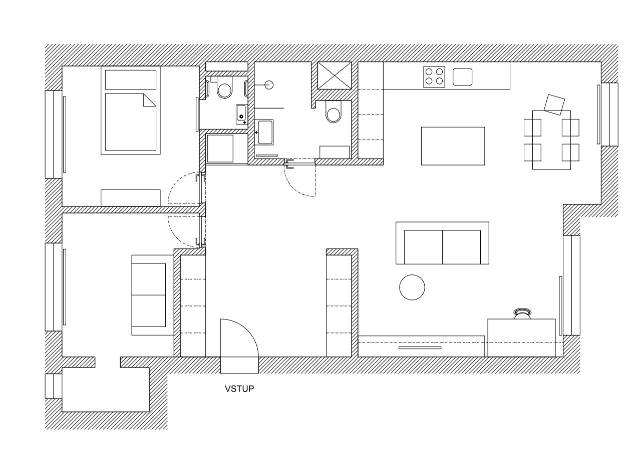
Návrh
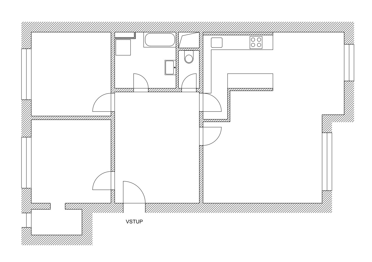
Původní stav
Previous
Školka Semily
Next
Rekonstrukce chaty Nesvačily